130㎡现代轻奢风大平层,恰到好处的精致!
扫描到手机,新闻随时看
扫一扫,用手机看文章
更加方便分享给朋友
本案是一套130平的现代轻奢风装修,整体以现代大方的硬装空间基础,搭配上轻奢色彩与软装布置,加上黄铜质感与绿植点饰,使得空间装扮出诗意时尚的高级氛围感。
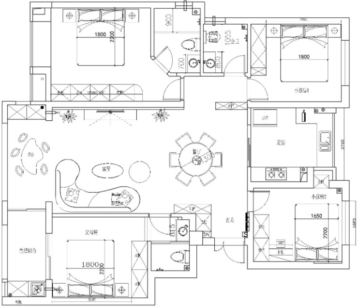
户型:4房2厅3卫
入户玄关处采用整体柜设计,下面留空10CM,可放出入鞋。平整的封闭柜门,隔绝灰尘,掩盖凌乱,开放位置则可放小件,在转角后段做延伸衣柜设计,便于悬挂衣物,增大收纳空间,满足一家人的需求。
客厅在硬装上追求细节和美观,配上精致的家具与软装配饰,色系协调一致,令人赏心悦目。简约流畅的现代家具、点缀稍许金属配色,整体空间充满轻奢小资范的雅致格调。
电视背景墙采用自然纹理质感的大理石,呈现出高雅质感的视觉,搭配灰色的电视柜与深色皮沙发,更有清新的盆栽绿植点缀,让空间显得稳重又清馨自然。
餐厅与客厅在同一空间里,采用黑、白、灰永恒三色提升了整体空间的高级感,岩板纹理的餐桌,搭配灰色的餐椅,显得端庄优雅而又文艺舒适。
一侧的餐边柜兼具收纳和展示,以及重要的区域分隔功能,应对原始户型的缺陷,设计师巧妙的用整体柜的设计,化解了客卫直对入户门的缺点。
色系匹配的摆件与鲜花插花布置,也为餐厅注入了清新舒适的雅致气息。
客厅与阳台空间打通,布置上桌椅,摆设成主人喝茶招待客人或工作看书的小区域,旁边定制一个收纳柜可以做日常收纳,也能当做书柜使用,简洁现代的布置,方便又实用。
卧室采用奶咖色墙布,营造简洁自然安静的睡眠空间,搭配温馨且柔和的壁灯,干净利落,使人安静且进入梦乡,阳台利用原本区域,将窗户外移,打造出舒适的休闲飘窗。
声明:本文由入驻焦点开放平台的作者撰写,除焦点官方账号外,观点仅代表作者本人,不代表焦点立场。
